REA McGee (Dublin West)

29 The Park, Kingswood, Dublin, D24 Y86H

3 Bed Detached House For Sale

€425,000

Print additional images & map (disable to save ink)

Photo 1 of 29 The Park, Kingswood, Dublin

Telephone:

(01) 405 7700

View Online:

www.reamcgee.ie/1058731

Key Information

Address 29 The Park, Kingswood, Dublin, D24 Y86H
Price Last listed at €425,000
Style Detached House
Bedrooms 3
Bathrooms 1
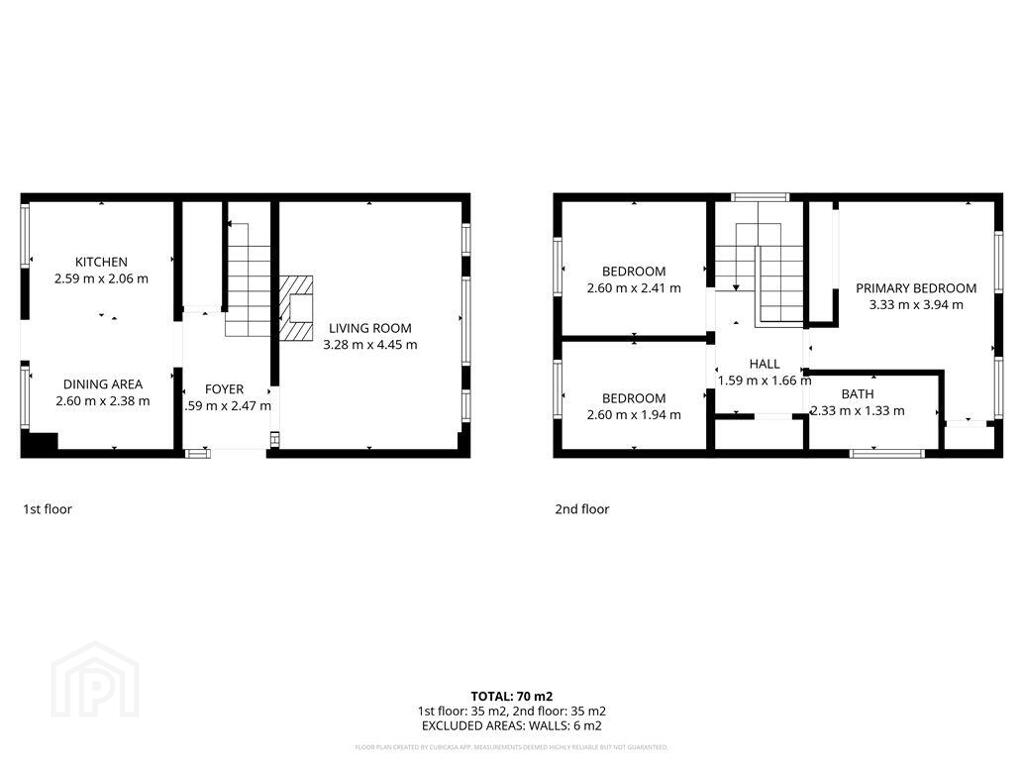
Size 72 m²
BER Rating
Status Sale Agreed
PSRA License No. 002939
   

Features

  • 72 sq.mt
  • Built 1977
  • Detached House
  • Large Back Garden
  • Close to Public Transport
  • Excellent Location
  • Easy access to M50 Junction 10
  • Parking
  • Central Heating

Additional Information

REA McGee is delighted to present this spacious three-bedroom detached house to the market. No. 29 The Park extends to 72 sq. mt, the property presents a bright and spacious living room, open plan kitchen and dining area, two double bedrooms, one single bedroom and main bathroom. This superb home offers off street parking, gas heating, side entrance, convenient living and a large back garden.

Kingswood Heights is conveniently located beside the Red Line Luas and M50 providing easy access to the City Centre and many other prime locations around Dublin. There is an abundance of primary and secondary schools within walking distance. The Square Town Centre, TUD Tallaght, Tallaght Village and Clondalkin Village are within a short distance. The area hosts many shops, cafes, restaurants and sports facilities including GAA & Football clubs.

Contact REA McGee 014057700 for more information

BER details

BER Rating:

BER No.: 106607427

Energy Performance Indicator: 554.16 kWh/m²/yr

  • REA McGee

    REA McGee (Dublin West)

    (01) 405 7700

Photo Gallery

Photo 1 of 29 The Park, Kingswood, Dublin Photo 2 of 29 The Park, Kingswood, Dublin Photo 3 of 29 The Park, Kingswood, Dublin Photo 4 of 29 The Park, Kingswood, Dublin Photo 5 of 29 The Park, Kingswood, Dublin Photo 6 of 29 The Park, Kingswood, Dublin Photo 7 of 29 The Park, Kingswood, Dublin Photo 8 of 29 The Park, Kingswood, Dublin Photo 9 of 29 The Park, Kingswood, Dublin Photo 10 of 29 The Park, Kingswood, Dublin Photo 11 of 29 The Park, Kingswood, Dublin Photo 12 of 29 The Park, Kingswood, Dublin Photo 13 of 29 The Park, Kingswood, Dublin Photo 14 of 29 The Park, Kingswood, Dublin Photo 15 of 29 The Park, Kingswood, Dublin Photo 16 of 29 The Park, Kingswood, Dublin Photo 17 of 29 The Park, Kingswood, Dublin Photo 18 of 29 The Park, Kingswood, Dublin Floorplan 1 of 29 The Park, Kingswood, Dublin

Location

Visit www.reamcgee.ie for further details.